상태가 나쁘지 않아, 요즘 식으로 무엇인가 고쳐서 써 보려고 하지만 참으로 무엇인가 요즘 식으로 만들기엔 난감한 집이 있다. 요즘식이란 예전에 비해 모든 것이 다 크고, 가구가 많이 들어가기 때문이며, 생활의 쾌적함을 위해 갖추어야 할 것이 많기 때문이다.
1980년대에 조적식 2층으로 지어진 집이었다. 옥상 방수를 포함해 외부 마감과 구조물의 상태는 크게 나쁘지 않은 집이었다. 방은 3개, 세탁실을 겸하는 화장실이 있고, 주방은 딱 주방일만 할 수 있는 주방이었다. 모서리에 겨우 작은 식탁을 끼워 놓은 듯 2사람이 식사를 할 수 있는 구조였다. 거실은 3면이 다 문, 창문, 등이 있는 벽에 면해 있고, 크기 또한 요즘 거실 사용 스타일로는 뭘 할래야 할 수 없는 구조와 규모였다. 뒤켠으로 보일러실이 80년대 알미늄 샤시와 지붕으로 창고를 겸하게 되어있었다. 지하는 예전의 기름보일러 실로 썼는 지, 천정이 따로 되어있지 않았고, 그런데도 높이가 1.6미터가 되지 않았다. 전체적으로는 80년대 생활 방식에서나 사용이 가능한 구조였다. 예전 집 주인과 대화하여 알게 된 것은 최초의 집은 방2개, 부뚜막식 부엌이 1가구 였고 그 옆에 방 1개와 화장실, 개수대가 따로 1가구를 구성하고 있었다고 하였다.






전체적인 지지구조는 1층 조적식 외벽과 칸막이가 2층 바닥을 지지하고 2층 외벽과 조적식 칸막이가 지붕을 지지하는 구조였다. 외벽은, 대부분의 80년대 조적식 2층집들이 그러하지만, 1켜 치장 벽돌과 1켜 시멘트 벽돌 사이에 공간을 만들고 거기에 80연대 EPS 스티로폼 패널을 집어 넣은 벽체이다. 내부 칸막이 벽은 1켜 시멘트 벽돌을 쌓아 2층 콘크리트 슬라브를 지지하는 것이다. 문제는 이 내벽들이 내력벽으로 1, 2층이 같은 위치에 서 있는 게 아니라는 것이다. 그래도 같은 위치에 있다면 구조적인 안정성을 더 신뢰할 수 있었겠지만, 2층 외벽의 위치도 안으로 밀어 1층 보다 좁게 만들고 실내 방과 실을 배치를 자유롭게 하기 위해서 또 1층 벽체와 다른 위치에 칸막이 벽체를 두는 것이다. 그 위에 콘크리트 박공지붕이 2층 칸막이 벽 위에 올라가 있는 것이다. 다행인 것은 외벽면이나 지붕에 금이 가 있다던지, 페인트가 떨어져 나가 있다던지, 눈에 띄이는 결함은 보이지 않았다. 이건 거의 르 꼬르뷔제가 말한 자유로운 평면의 조적식이라고 할 만할 정도로 아찔한 경우가 있으나, 다행히 이 건물을 그 정도의 자유로운 광기가 보이는 집은 아니었다.


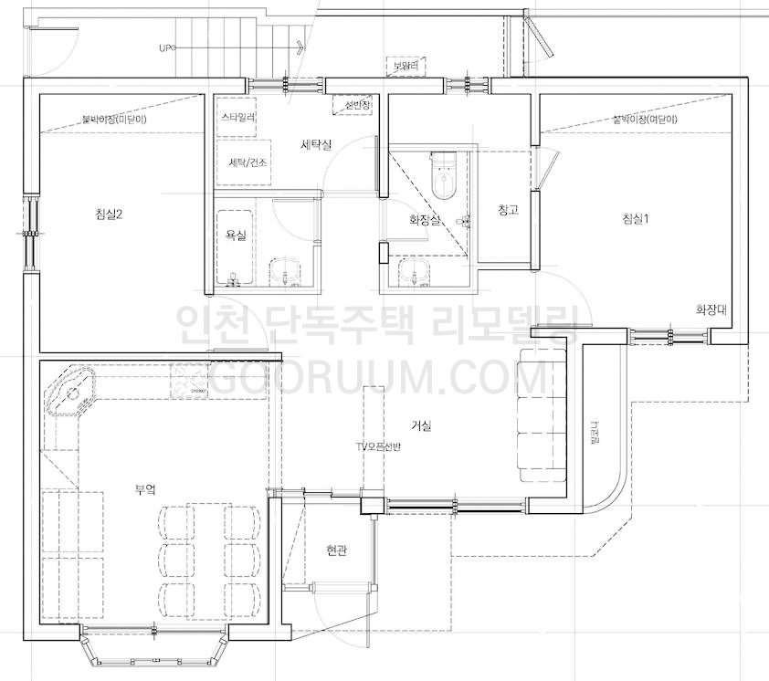
건축주의 계획은 2층은 이번 1층 리모델링 후, 다음 해에 외벽 단열+마감과 함께 시공을 할 것이고, 1층을 올해 겨울에 짧은 기간 리모델링을 하여 입주를 하여 거주를 하겠다는 것이었다. 그리고 1층에서 자제 분과 함께 방 2개만 있으면 충분히 살 만하니 위 그림과 같은 구성을 하여 설계와 시공을 해 주기를 바랐다. 조목조목 건축주의 생각을 반박하고 논리정연하게 따져 설득을 하며 시간을 들여 토론을 하였으면 하고 바랐으나, 건축주나 나나 만나는 시간을 내는 것조차 어려운 상황이었다. 말이 소용이 없었다. 일단은 현재 상황을 잘 챙겨 놓고, 건축주가 바라는 것이 될른지 그려봤다. 그리고 알파고 처럼 모든 경우의 수를 다 찾아 내고 더 많은 변수를 다 꺼내 놓고 더 깊게 ‘딥러닝’ 해 보았다. 5년 전 까지만해도 여기서 말하는 변수의 숫자가 그저 방, 가구, 위생기, 문의 크기가 다 였으니까, 이번 경우에 따진 경우의 수는 3배가 넘는 듯하다. 철거의 위치, 새로 생길 칸막이의 두께, 마감두께, 배전관, 배관의 크기, 그리고 실생활 (진정 요즘 사람들이 생활하는 스타일에 대한 깊은 이해와 건축주의 생활 방식과 그 이유 … 점점 가지수가 늘어 나는 건축주의 요구사항 … 이건 반드시, 저것도 반드시, 애매하지만 꼭, … 이러는 가운데, 하나씩 정리가 되고, 평면도가 완성되었다. 요즘 생활이 얼마나 도구중심적이냐 하면, 세탁기에다가 건조기 그리고 스타일러, 욕실이 꼭 2개가 필요하고 이번 경우에는 욕탕이 필요했다. 변기1개, 세면대 2개, 샤워2개, 욕탕1개가 필요했다. 방에는 꼭 침대와 붙박이 장이 방 2개에 각각 들어가야 했고, 냉장고, 김치냉장고, 인덕션, 오븐, 식기세척기, 정수기로 더하여 6인식탁이 들어가야 하고, 거실에는 평면 티비와 소파까지 … 그리고 더하여 기존 계단실 하부를 창고로 만들어 쓰게 하고, 나중에 다시 계단을 만들 수 있도록 하는 … 이것이 전체 과제였다. 세상에 22평짜리 집에 이것을 다 넣어야 하는 것이다.
수없이 여러번 ‘딥러닝’을 시도한 끝에 아래와 같이 평면도가 완성되었다. 말이 필요가 없는 해결책이었다. 빨리 건축주를 만나서 결론을 내고 싶었다. 야심한 시각에 만났다. 건축주가 아무말도 없기에 뭔 일인가? 불안하기도 했으나, 그저 웃고 계셨다. ‘바로 시작하시죠’

그 다음 부터는 시간이 어떻게 흘러 갔는 지 전혀 감지를 할 수 없었다. 철거, 곰팡이 벽체 나와서 기존 석고보드 벽체 철거, … 바탕, 설비, 전기 … 마감공사, 조명, 가구, 싱크대 … 미리 예상되었던 자그마한 난관들은 현장에서 더 쉽게 풀렸다. 배관 우회, 온돌배관 우회, 보일러 이동 …





마감재 선정도 어려움이 없었지만, 현장 경험이 전혀 없는 건축주 입장에서는 그리될 수 밖에 없었다. 무엇을 골라도 그것이 과연 어떻게 될 지 모르고 결정을 하는 것이기 때문에, 눈 뜬 장님이 될 수 밖에 없었다. 이번에는 건축주의 좌충우돌 딥러닝이 시작되었다. 나와 건축주는 서로 스트레스를 주는 시간이다. 이건 어때요? 좋죠 저걸로 하죠. 네. 죄송해요. 다른 걸로 정했어요. 아, 네. 그럼 이걸로. 아니 다시 이걸로요 … 자주 겪는 일 이지만, 확정이 되고 나면 모든 것은 마무리가 된다.














완성이 되었다. 방 2개, 욕실2개, 중형싱크대, 6인 식탁, 평면티비 시청가능 거실, 방2개, 붙박이장 2개, 창고 까지 마련되었다. 현관 중문을 열고 들어 오면 왼편에 주방-식당, 오른편에 거실, 전면에 방2개를 잇는 벽체가 있고, 욕실 2개와 세탁실을 잇는 홀이 있는 간단하면서 매우 기민하게 조직화된 평면 구성이 되었다. 거실 소파에 앉아서 부엌을 보자면, 티비가 부엌의 복잡한 하부를 가려주기에 편안하고 포근하게 느껴진다. 또 싱크대에서 거실을 보자면 편안하지만 이상한 자세로 앉아있는 사람의 아랫부분은 보이지 않는다. 적당하게 서로 가려주면서 적당하게 열린 상태를 유지하도록 하였다. 이 적당하게를 알기까지 얼마나 노력을 했던가.
부엌식당에 들어가면, 도로면에서도 보이는 남쪽 창에 면하여 식탁이 있다. 6인용 식탁이 들어간다. 식탁 펜던트등은 건축주가 반복의 조형논리에 근거하여 골랐으나 조명까지 네모네모하여 조금 아쉽다. 친구나 손님이 와서 부엌에서 놀기도 좋다. 괜한 눈치 볼 것도 없도록 적당하게 가려 놓았으니 실컷 편히 대화할 수 있다.
침실 2개는 동쪽에 서쪽에 나누어 놓았으니, 재택근무 야근을 많이 한다는 서측방과 일찍 자고 일찍 일어나는 건축주는 멀직이 떨어져 있어 서로 불편할 일이 없다.
현관 중문을 열고 처음 보이는 곳이 욕실-세탁실 연결 홀이다. 하필 세탁실의 문이 정면으로 보이는 데, 당연히 막힌 문을 설치할 거라 생각하기에 유리가 들어간 문으로 바꾸었다. 막힌 문의 냉담함은 사라지고 폐쇄적인 느낌을 상당히 줄일 수 있었다. 세탁실에는 기존 부엌의 환기창마저 그대로 쓸 수 있게 되어 있다. 세탁 먼지나 세제 냄세를 배기시키기에 적당했고, 현관, 중문과 세탁실의 문과 창을 열어 두면 전체 환기도 잘 이루어 졌다.
건축주 께서 한 말씀 하셨다.
“퇴근 시간이 되면, 집에 빨리 가고 싶어요”
최고의 칭찬이었다.















































































































